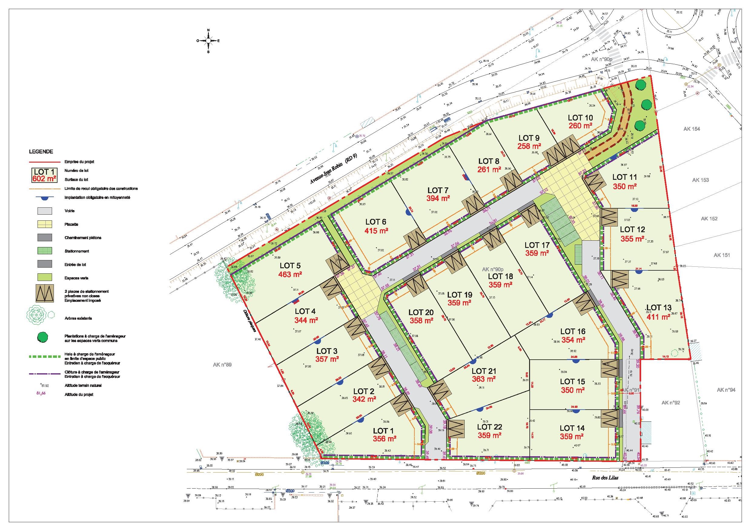
Au cœur du centre-ville, proche des commerces, des services (Poste, Mairie,…) et des écoles, cette opération
propose 22 terrains à bâtir viabilisés de 258m² à 463m².
Toutes les commodités sont disponibles en quelques minutes : Halte-garderie, écoles, ensemble sportif,
centre médical, commerces,…
Les lots sont vendus "Libre de constructeurs".

Salle de spéctacle "Le Préambule"

Plan d'eau proche de l'opération

Placette de la Poste

Charger le plan de composition ICI
